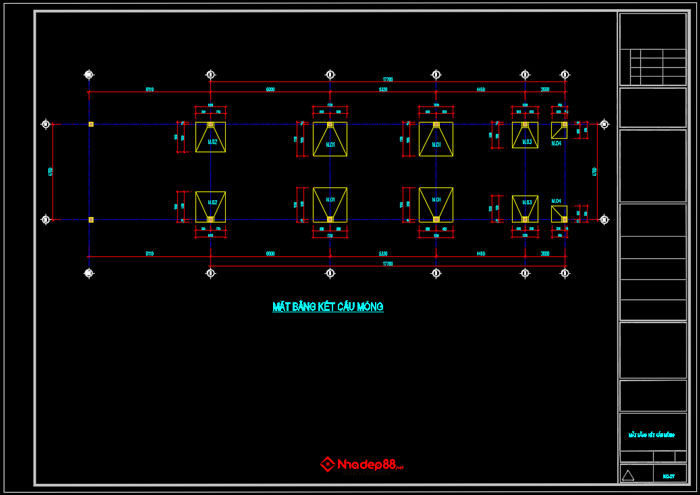
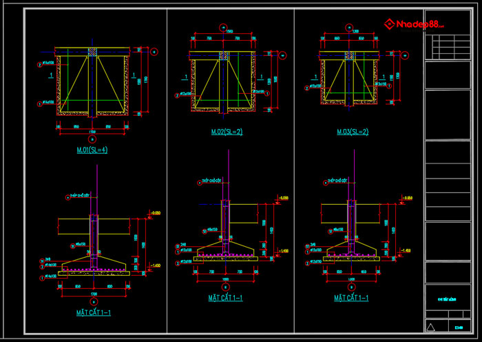
Tải bản vẽ CAD cấp phép xây dựng, kết cấu móng đơn:
Download bản vẽ CAD cấp phép xây dựng có kết cấu móng đơn:


Mật khẩu giản nén file: nhadep88.net
- (Thương hiệu Nhadep88) thuộc Công ty Cổ phần Xây dựng NACENCONS
- Văn phòng thiết kế: Số 2812, 30T2 Nam Trung Yên, Yên Hòa, Hà Nội, Việt Nam
- Hotline/ zalo: 0345 227 124
- Website: https://nhadep88.net
- Fanpage:https://www.facebook.com/nhadep88


